
FEATURED PROJECTS
Welcome to my portfolio. Here you’ll find a selection of my work. Explore my projects to learn more about what I do.

This is the end result of the front exterior that was fully remodeled.

Notice the parapet; open low area in middle house section. Master suite added here. Right side roof is Skillion, which was changed to a gable for aesthetic purposes of improvement.

Notice the lovely large scale tiles, glass enclosure, soft champagne gold fixtures.

This is the end result of the front exterior that was fully remodeled.

Rendering of backside of the house. This is typical of what you will get from your builder/contractor/architect. We took things a step further that provided a more fully immersive experience.

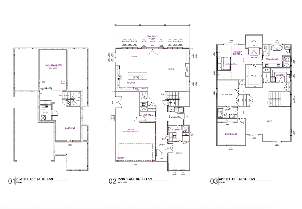
When you only have a floor plan and renderings of exterior it's hard to imagine. We created 3D images to allow the owner to visualize the space, plan and pick finishes.

Here we were able to give a real sense of the size of the space as well as try out different finishes.

Rendering of backside of the house. This is typical of what you will get from your builder/contractor/architect. We took things a step further that provided a more fully immersive experience.

The 3 car garage added where rose garden was originally. The family room to the right of garage is new and was the old garage. New porch and roof over porch and entry way. New paver driveway.

Built in the 50's and never touched one can only imagine the rework needing to be done to fully modernize and update this old rancher. Originally about 1500 sf, now slightly over 3000. Added master suite, family room, garage and ADU as well as updated and remodeled almost every inch of the home.

Crushed gravel for a natural look under sitting area.

The 3 car garage added where rose garden was originally. The family room to the right of garage is new and was the old garage. New porch and roof over porch and entry way. New paver driveway.

Classic Tahoe cabin purchased in 2018 with some remodeling for increased functionality and improvement as well as updated aesthetics.

This was a difficult and small space to work with and only had a toilet prior. We were able to add a shower and sink with much creativity and planning. See the slate tiles, built carefully around the original stained glass window. Glass enclosure to open the space as much as possible. Incredible addition for ease of use to not require going downstairs and increase property value.

Refaced all cabinets. Incrased opening of window between kitchen and dining area. Increase window size to the outside above the sink. Replaced sink with a brushed stainless steel farmhouse sink. Replaced all appliances and flooring and countertops with granite and waterfall edge.

Classic Tahoe cabin purchased in 2018 with some remodeling for increased functionality and improvement as well as updated aesthetics.